Die besten Modulhäuser
Grundrisse

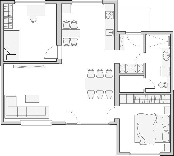
triomod – 94 V1

Das geräumige Haus ist perfekt für eine Familie mit Kind, da es über ein großes Schlafzimmer und ein Kinderzimmer verfügt. Darüber hinaus erhalten Sie einen komfortablen, modernen Küchen-Essbereich, in dem Ihre ganze Familie Spaß haben wird.

10-12 Wochen vom Zeitpunkt der Bestellung bis zur Lieferung des fertigen Hauses an Ihren Standort – und das zu jeder Jahreszeit
Grundrisse
Grundrisse
Grundrisse 3D
Interieur
T
M
94
Einzelheiten
Abmessungen:
11,25 x 8,2 m
Gebäudefläche:
94 qm
Nutzfläche:
77 qm
Stockwerk:
1
Deckenhöhe:
2,48 m
Anzahl der Module:
3
Anzahl der Schlafzimmer:
2 oder 3 Optional
Komfortable Unterbringung:
3-4 Personen
Anzahl der Grundriss Möglichkeiten:
3
Energieeffizienz:
KfW 55 Basis, KfW 40 Optional
Grundmaterial des Hauses:
Massivholz
Möglichkeiten der Außenwanddämmung:
Mineralwolle Optional, Polyurethanschaum, Holzfaser
Fenster:
Zweikammer-Metall-Kunststoff Basis, Aluminium Optional
Möbel und Geräte:
Auf Anfrage
Bodenbelag:
Eichenparkett/Feinsteinzeugfliesen (in Nassbereichen)
Ausbaumaterialien (Fußböden, Türen, Sockelleisten):
Naturholz (Eiche)
mehr Details
Um die 3D-Tour zu starten,
klicken Sie irgendwo
3D-Rundgang

Loading...

ALLE NOVA TEQ-HÄUSER SIND FÜR DAUERHAFTES WOHNEN GEEIGNET

VORTEILE DES MODULHAUSES VON NOVA TEQ

100% ÖKOLOGISCH
UND NATÜRLICH
1
Wir verwenden die natürlichsten und umweltfreundlichsten Materialien, die für Ihre Gesundheit unbedenklich sind und deren Herstellung die Umwelt nicht belastet
FABRIKFERTIGE
HAUSKONSTRUKTION
2
Die gesamte Struktur des Hauses wird in unseren Produktionsstätten entworfen und hergestellt, so dass Sie in kurzer Zeit perfekte Qualität erhalten
MODULARES
SYSTEM
3
Sie können ganz einfach ein Erweiterungsmodul bestellen, um die Wohnfläche Ihres Hauses zu vergrößern
MODERNES DESIGN
IN ALLEN ELEMENTEN
4
Alle Elemente des Hauses sind nach modernen innenarchitektonischen Gesichtspunkten gestaltet, was dem Haus einen lakonischen Charakter verleiht und die Möglichkeit bietet, durch die Dekoration einen eigenen Stil zu schaffen.

QUALITÄT IM DETAIL

SIE ERHALTEN::

1
Schattenfuge des Fensters Holzrahmen, Fensterbank und Fensterleibung in einer Ebene mit der Wand
2
Verdeckter Türeinbau - Verbindung von Tür, Wand und Sockelleiste in einer Ebene Eine elegante Lösung, die das Türdesign so ästhetisch wie möglich macht.
3
Schattenfuge zwischen Decke und Wand
sieht elegant aus und trennt Wand und Decke mit einer Kontur
4
Massivholz im Interieur Außenseite der Tür und des Türrahmens aus natürlichem Massivholz
5
reine Geometrie Die Horizontale geht in der gleichen Ebene in die Vertikale über
6
Wir halten uns an die höchsten Standards der Umweltfreundlichkeit – das gesamte Massivholz ist mit hochwertigem Ölwachs behandelt.
WIR GESTALTEN IHR ZUHAUSE FÜR SIE MIT DEN VON IHNEN GEWÄHLTEN TECHNOLOGIEN

LÖSUNGEN

GRUNDAUSRÜSTUNG

In der Grundausstattung des Hauses erhalten Sie eine weiße Box mit fertigen Wänden, Fenstern und Türen, ein fertiges Badezimmer und Infrarotstrahler zum Heizen.

  • INNENAUSBAU VON WÄNDEN UND DECKEN - ENDANSTRICH
  • HAUSBAU: ISOLIERUNG MIT MINERALWOLLE
  • INNENTÜREN
  • BODENBELAG: PARKETT UND FEINSTEINZEUGFLIESEN IN NASSBEREICHEN
  • KOMPLETTES BADEZIMMER
  • INFRAROTSTRAHLER

ZUSATZOPTIONEN

KÜCHEN- UND HAUSHALTSGERÄTE
B – 1.1
KÜCHEN- UND HAUSHALTSGERÄTE
Wir erstellen für Sie eine Küche im modernen Stil, ausgestattet mit allen notwendigen Geräten
Smart Haus
T – 1.1
Smart Haus
Wir entwickeln ein einheitliches intelligentes System zur Steuerung aller Hauskomponenten
Photovoltaikanlagen
a – 1.1
Photovoltaikanlagen
Sonnenenergie für Heizung und Warmwasserbereitung nutzen
MÖBEL
B – 1.1
MÖBEL
Unser Designer hilft Ihnen bei der Auswahl der Möbel unter Berücksichtigung der Eigenschaften Ihres Wohnmodells
Alle Technologien anzeigen (11)
SPAREN SIE BIS ZU 70% VON VERBRAUCH DER ENERGIE
EIN MODULHAUS VON NOVA TEQ IST IHRE INVESTITION IN DIE SENKUNG DER UNTERHALTSKOSTEN IHRES HAUSES IN DER ZUKUNFT.

Das Modulhaus TRIOMOD-94 V1 in der Grundausstattung mit Außenwänden mit Wärmeleitfähigkeitskoeffizient U-0,18 w/m2K mit Mineralwolldämmung und doppelt verglasten Fenstern mit energiesparendem Glas mit spezieller Besprühung, Inertgas und ferngesteuerter energiesparender Verglasungssprosse ermöglicht es Ihnen, den Energieverbrauch im Vergleich zu Häusern in traditioneller Bauweise deutlich zu senken.

ERGÄNZT MAN DIE GRUNDAUSSTATTUNG DURCH TECHNOLOGIEN WIE SOLARANLAGEN, FUSSBODENHEIZUNG UND EINE DÄMMUNG MIT EINEM HÖHEREN WÄRMELEITKOEFFIZIENTEN, ERHÖHT SICH DIESER INDIKATOR NOCH WEITER